Chủ Nhật, 28 tháng 10, 2018

Tư vấn thiết kế nhà ống 50m² xinh xắn và tiện nghi

Tư vấn thiết kế nhà ống 50m² một mặt tiền có đủ không gian sinh hoạt cho cả gia đình đủ sáng, thông thoáng và hợp phong thủy.

  • ·        Không thể rời mắt khỏi mẫu bàn ăn mặt đá đầy cảm hứng
  • ·        Gợi ý bàn ăn mạ PVD hiện đại cho căn hộ, chung cư
  • ·        Trang trí nhà bếp với mẫu bàn ăn mạ vàng được nhiều người yêu thích
  • ·        Chọn bàn ăn mạ titan làm sáng bừng không gian nhà bếp 
Chuyên mục Nhà Hay thân mến!

Gia đình tôi đang sở hữu mảnh đất có diện tích 50,5; mặt tiền 3,29m hướng đông nam; chiều dài bên phải 15,44m, chiều dài bên trái 15,36m. Tôi có mong muốn xây mảnh đất này thành ngôi nhà có 2 phòng ngủ; có khoảng không để lấy ánh sáng và hút gió; phía trước có chỗ để xe máy.

Tôi sinh năm 1983. Mong các KTS tư vấn thiết kế nhà giúp tôi sao cho có không gian ở thoải mái, thoáng đãng và hợp phong thủy.

Xin trân trọng cảm ơn!

KTS tư vấn:
 
Dựa theo những thông tin mà bạn cung cấp và yêu cầu của bạn, chúng tôi xin đưa ra thiết kế sơ bộ để bạn tham khảo.

Tư vấn thiết kế nhà ống 50m² xinh xắn và tiện nghi 1
Mặt bằng tầng 1.

Tư vấn thiết kế nhà ống 50m² xinh xắn và tiện nghi 2
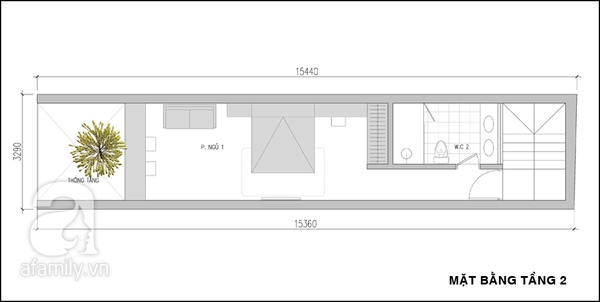
Mặt bằng tầng 2.

Tư vấn thiết kế nhà ống 50m² xinh xắn và tiện nghi 3
Mặt bằng tầng 3.

Ngôi nhà của bạn dạng ống và có chiều rộng khá hẹp. Tiêu chí chúng tôi đặt ra khi thiết kế ngôi nhà này là làm sao vừa tận dụng ánh sáng tự nhiên cho mọi không gian sống đồng thời sử dụng được tối đa diện tích mặt bằng.
 
Cầu thang được bố trí ở phía cuối nhà, đây là dạng thang kết hợp với giếng trời để lấy sáng và thông gió cho khoảng không gian ở phía sau nhà. Việc bố trí thang như vậy cũng tạo điều kiện cho diện tích sử dụng của các không gian trên cùng một tầng là lớn nhất. 
 
Khu vực để xe trước nhà được thiết kế thông tầng kết hợp tiểu cảnh. Phần tiểu cảnh này đóng vai trò như một phần đệm chuyển giao từ khu để xe vào phòng khách, điều này giúp cho không gian phòng khách trở nên sống động và thanh nhã hơn. Phần cây xanh được thiết kế vươn lên đến tầng hai – nơi bố trí phòng ngủ chính. Bóng xanh trước cửa phòng ngủ sẽ giúp cho không gian ngủ không bị ảnh hưởng bởi những tác động từ bên, đồng thời cũng tạo ra một góc thư giãn thú vị cho căn phòng.
 
Trên tầng ba là một phòng ngủ nhỏ, một sân phơi đồ, và một phòng thờ. Sân phơi đóng vai trò là không gian ngăn cách giữa các khu vực khác và phòng thờ. Cách bố trí không gian này tạo sự yên tĩnh, và riêng biệt cho nơi thờ cúng. Bạn có thể tận dụng khoảng sân này và bày trí khéo léo để có được một khu vườn nhỏ xinh cho ngôi nhà. Mái kính lấy sáng được thiết kế để đưa ánh sáng thiên nhiên và ngôi nhà của bạn.

Về phong thủy, bạn sinh năm 1983 thuộc mệnh Thủy. Những màu sắc trong trang trí nhà phù hợp cho người mệnh Thủy là trắng, xanh lam, đen, xanh lá cây và gỗ. Đây đều là những màu sắc khá dễ phối nội thất. Màu sắc kị với người mệnh Thủy là vàng và nâu.
 
Sau đây là một số hình ảnh minh họa giúp bạn hình dung được tốt nhất về không gian cho ngôi nhà của mình:

Tư vấn thiết kế nhà ống 50m² xinh xắn và tiện nghi 4
Phòng khách xinh xắn nhờ vào góc tiểu cảnh được thiết kế tinh tế.

Tư vấn thiết kế nhà ống 50m² xinh xắn và tiện nghi 5
Bếp sạch sẽ và gọn gàng với hệ thống tủ lưu trữ kín.

Tư vấn thiết kế nhà ống 50m² xinh xắn và tiện nghi 6
Bàn ăn xinh xắn cùng tông màu với bếp.
Tư vấn thiết kế nhà ống 50m² xinh xắn và tiện nghi 7
Phòng ngủ bài trí tiện dụng, nhẹ nhàng, thư giãn.
Tư vấn thiết kế nhà ống 50m² xinh xắn và tiện nghi 8
Các phòng vệ sinh đều rộng rãi, tiện nghi.


Hãy Comment chuẩn SEO vừa làm tốt cho site của Bạn vừa không bị GOOGLE phạt. Nếu muốn lấy backlink hãy chèn URL không chèn code gắn text link. Biểu tượng hài hướcEmoticon